METAL HANDRAILS 2 OPEN.jpg

Client:

private

Location:

bridgeport chicago, il

Program:

single family home

Area:

2800 sqft.

Construction Budget:

private

Completion Date:

unbuilt

Role on Project:

project manager/lead architect

Architect: AROA

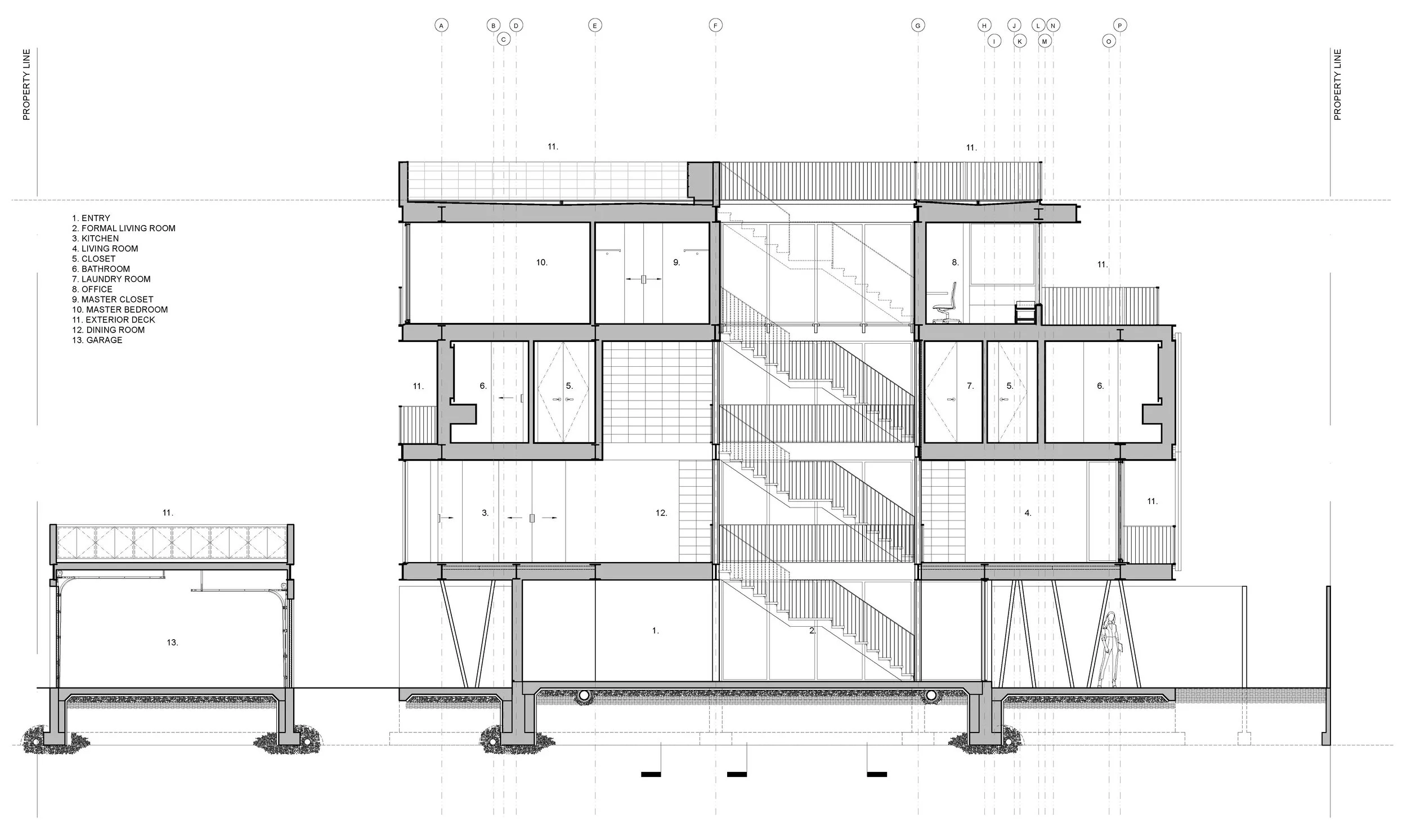
Located in Bridgeport, Chicago this project is well placed across from a newly renovated park. The client stressed that they would like to maintain views to the park while retaining a degree of intimacy within the home. This informed our concept, public vs private space within a structure utilizing simple design tools such as massing and screening.

The use of shifting volumes and privacy walls we were able to generate a very private but open space on the ground floor. The upper floors turn inwards to the large interior patio that runs with the circulation vertically through the space. Each volume additionally have views to the exterior of the property, but with a façade mounted screening system that allows a large degree of control from the user.

The entry to the home is located on the side lot line so that the visitor enters into the interior patio that runs through the middle of the shifting spaces. This space allows for light and air to reach all portions of the building while also creating a private interconnected experience for the family.

Kitcehn Rendering View 2 Option 2.jpg
MASTER BATH VIEW 4.jpg
Guest Bath Rendering.jpg
black+handrails+adjusted+view+1.jpg
Kitchen View 4 Rendering Options 2.jpg
second floor powder room option 2.jpg
METAL HANDRAILS VIEW 4.jpg
building section

building section

first floor plan

first floor plan

second floor plan

second floor plan

third floor plan

third floor plan

fourth floor plan

fourth floor plan

Previous
Previous

Lara Apartments

Next
Next

55BL